
DEVELOPED BY
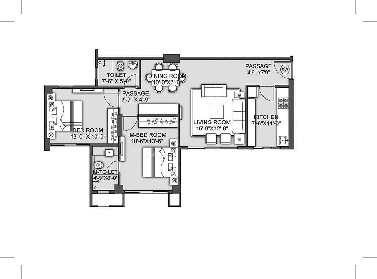
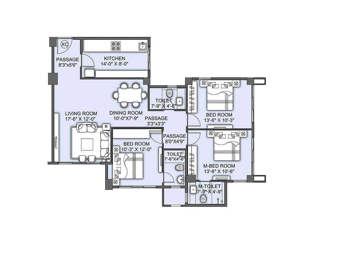
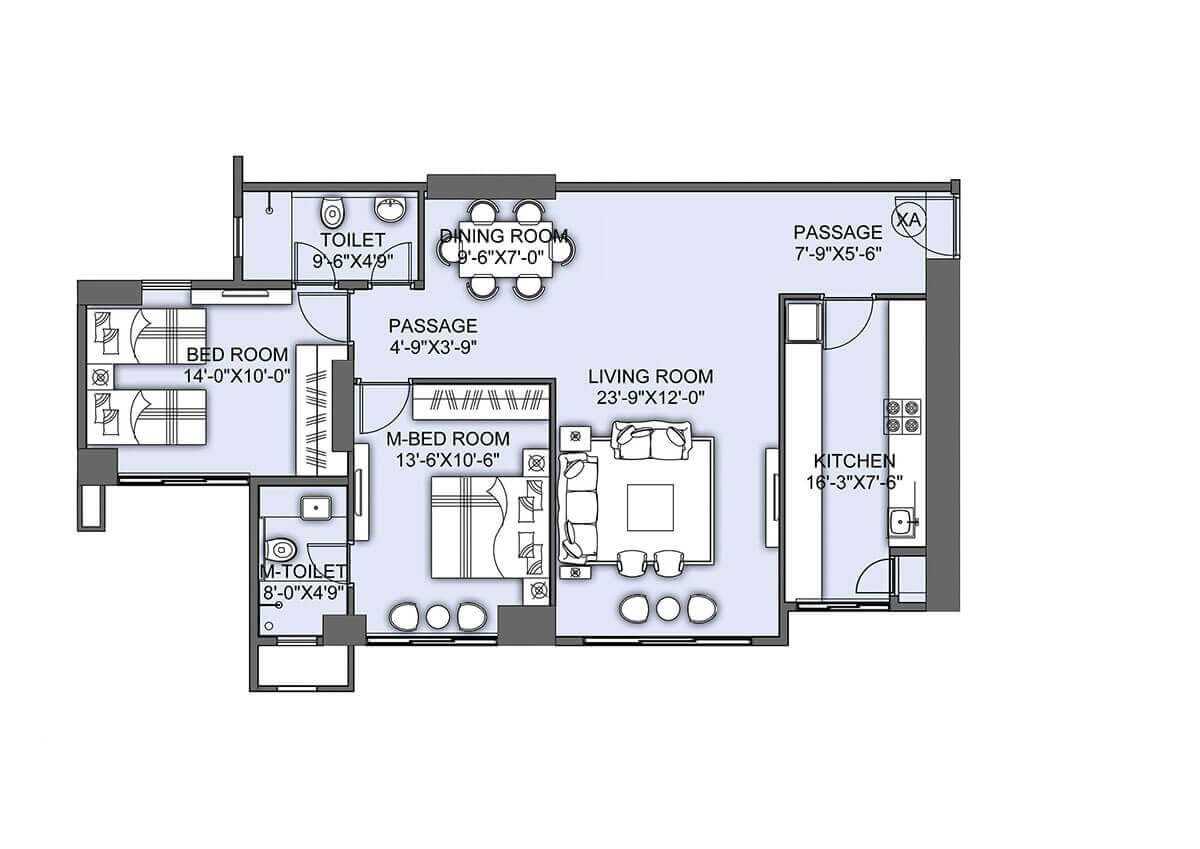
1, 2, 3 BHK Flat from 419 Sq. Ft. to 1039 Sq. Ft. (Carpet)



Elevate your lifestyle at Rivali Park, Borivali East, Western Suburbs, Mumbai, an exceptional project by CCI that redefines urban living. Seamlessly blending natural allure with contemporary luxury, we cater to the aspirations of today's discerning homebuyers. Enjoy a grander lifestyle with the perfect fusion of exclusivity and convenience, where meticulously curated amenities delight your senses for a holistic recreational experience. This project offers 1 BHK, 2 BHK, and 3 BHK flats for sale, with a property size ranging from 419 sq ft to 1039 sq ft.

Borivali East

CCI Projects

P51800050351

Apr, 2023

22 Acres

Aug, 2028

1, 2, 3 BHK Flat

419 sq.ft. - 1039 sq.ft.

₹ 26.84 K/sq.ft






























Borivali East offers affordable homes in a decent living environment. With good public transport, well-lit streets, and no power shortages, it ensures a safe and convenient lifestyle. Nearby markets and hospitals add to the convenience. However, urgent development is needed for nearby slums, and traffic congestion remains a challenge on overcrowded roads.

2, 3 & 4 BHK Flat
Kandivali East, Mumbai
POSSESSION : JUN, 2024

2, 3 BHK Flat
Kandivali East, Mumbai
POSSESSION : DEC, 2027

1, 2 & 3 BHK Flat
Kandivali East, Mumbai
POSSESSION : DEC, 2020

2, 3 BHK Flat
Kandivali West, Mumbai
POSSESSION : AUG, 2029

1, 2, 3 & 4 BHK Flat
Kandivali East, Mumbai
POSSESSION : DEC, 2029

1, 2 & 3 BHK Flat
Kandivali East, Mumbai
POSSESSION : JUN, 2024
Rivali Park is located in Borivali East, Western Suburbs, Mumbai.
Yes, Rivali Park is RERA approved and RERA for Rivali Park is P51800050351.
Rivali Park offers a variety of unit sizes for sale, including 1 BHK 419 Sq. Ft., 2 BHK ranging from 558 Sq. Ft. to 814 Sq. Ft. and 3 BHK ranging from 875 Sq. Ft. to 1039 Sq. Ft.
Rivali Park offers a variety of lifestyle and luxurious amenities. See all amenities here.
Proptyhub offers best price for 1, 2 & 3 BHK units in Rivali Park as we directly connect you with the developer. To know the best price click here.

2, 3 & 4 BHK Flat
Kandivali East, Mumbai
POSSESSION : JUN, 2024

2, 3 BHK Flat
Kandivali East, Mumbai
POSSESSION : DEC, 2027

1, 2 & 3 BHK Flat
Kandivali East, Mumbai
POSSESSION : DEC, 2020

2, 3 BHK Flat
Kandivali West, Mumbai
POSSESSION : AUG, 2029

1, 2, 3 & 4 BHK Flat
Kandivali East, Mumbai
POSSESSION : DEC, 2029

1, 2 & 3 BHK Flat
Kandivali East, Mumbai
POSSESSION : JUN, 2024

1, 2 & 3 BHK Flat
Borivali East, Mumbai
POSSESSION : AUG, 2028

1, 2 & 3 BHK Flat
Jogeshwari West, Mumbai
POSSESSION : DEC, 2028

2, 3 & 4 BHK Flat
Andheri West, Mumbai
POSSESSION: OCT, 2028

1, 2, & 3 BHK Flat
Andheri West, Mumbai
POSSESSION : JUN, 2026

1, 2 & 3 BHK Flat
Andheri West, Mumbai
POSSESSION : DEC, 2027

1, 2 BHK Flat
Andheri West, Mumbai
POSSESSION : DEC, 2028

3 BHK Flat
Andheri West, Mumbai
POSSESSION : SEP, 2030



Principal Amount: ---
Total Interest Paid: ---
Total Amount Paid(Principal + Interest): ---


